강중 바이오사업부는 보건복지부가 인증하는 첨단재생의료실시기관의 설비 구축과 컨설팅 전반을 지원합니다. 개념 설계부터 실시설계, 설비 설치, 인증 신청서류 작성까지 원스톱 서비스를 제공하여 고객이 효율적이고 신뢰할 수 있는 공간을 구축할 수 있도록 돕습니다.

1. 서비스 개요 : 강중 바이오사업부는 의료기관이 보건복지부로부터 첨단재생의료실시기관으로 지정받을 수 있도록 종합적인 컨설팅과 설비 구축 서비스를 제공합니다. 2. 주요 서비스 내용 : - 초기 상담 및 현장 조사 : 의료기관의 현황과 요구를 파악하고, 현장 조사를 통해 시설 구조와 환경을 분석하여 의료실시기관 요건 충족 여부를 평가합니다. - 계획 수립 및 설계 : 현장 조사 결과를 바탕으로 맞춤형 설계안을 도출하고, 세부 계획을 수립하여 최적의 연구 환경을 조성합니다. - 설비 구축 및 시공 : 계획된 설계에 따라 고품질의 시공을 수행하며, 필수적인 연구 장비와 시스템을 설치하여 운영 준비를 완료합니다. - 문서 작성 및 인증 지원 : 표준작업지침서(SOP) 등 필수 문서를 작성하고, 첨단재생의료실시기관 지정을 위한 인증 절차를 지원하여 원활한 승인을 돕습니다. - 교육 및 사후 관리 : 운영 인력에 대한 교육을 실시하고, 지속적인 유지보수와 지원을 통해 장기적인 안정성을 보장합니다. 3. 서비스 특징 : - 전문성: 첨단재생의료 분야에 대한 깊은 이해와 경험을 바탕으로 전문적인 서비스를 제공합니다. - 맞춤형 솔루션: 각 의료기관의 특성과 요구에 맞춘 최적의 솔루션을 제공합니다. - 원스톱 서비스: 설계부터 시공, 인증, 교육까지 모든 과정을 일괄적으로 지원하여 고객의 편의를 도모합니다.
첨단재생의료실시기관은 「첨단재생의료 및 첨단바이오의약품 안전 및 지원에 관한 법률」에 따라 보건복지부로부터 지정을 받아 첨단재생의료 임상연구를 수행하는 의료기관을 의미합니다. 이러한 기관은 세포, 유전자, 조직 등을 활용한 첨단재생의료 기술을 연구하고 임상에 적용하여 새로운 치료법 개발에 기여합니다.

1. 시설 및 장비 : 첨단재생의료 임상연구를 안전하게 수행할 수 있는 시설과 장비를 갖추어야 합니다. 2. 인력 : 연구책임자, 연구담당자, 인체세포등 관리자, 정보관리자 등 필수 인력을 확보하고, 이들은 보건복지부 장관이 정하는 교육을 이수해야 합니다. 3. 표준작업지침서(SOP) : 연구의 표준화와 안전성을 확보하기 위한 절차서를 마련해야 합니다.
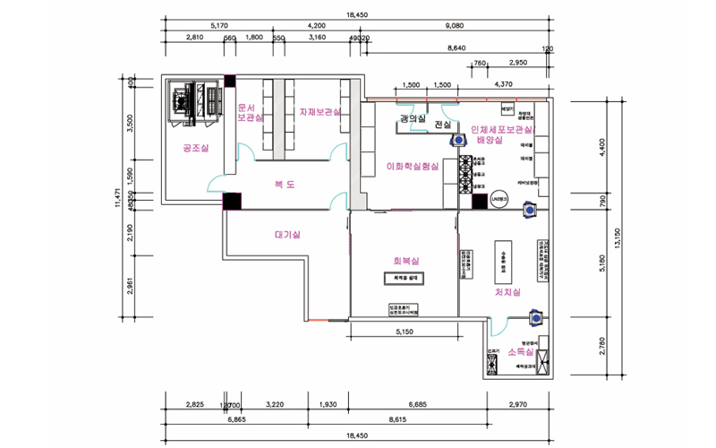
· 첨단재생의료 임상연구를 안전하게 수행할 수 있는 시설과 설비를 갖추어야 합니다. · 공조, 음압·양압, 멸균 장비 등 연구 및 임상 환경에 적합한 설비 구축.
· 연구책임자, 연구담당자, 인체세포 관리자, 정보관리자 등 필수 인력을 확보해야 하며, 보건복지부가 정한 교육을 이수해야 합니다.
· 연구의 윤리성과 안전성을 보장하기 위해 반드시 IRB(Institutional Review Board) 승인을 받아야 합니다. · 자체 IRB가 없을 경우 공용 IRB와 협약을 맺고, 연구 윤리 심사를 통과해야 합니다. · IRB 승인은 첨단재생의료 임상연구 수행의 필수 요건입니다.
· 연구 설계, 데이터 관리, 안전관리 등 모든 연구 절차를 표준화한 작업 지침서를 마련해야 합니다. · SOP는 보건복지부의 가이드라인과 국제 표준에 부합해야 합니다.
· 의료개설허가증, 시설 운영에 필요한 인허가증 등 법적으로 요구되는 서류를 구비해야 합니다. · 연구와 관련된 모든 활동이 관련 법률과 보건복지부 기준에 부합해야 합니다.
의료기관은 첨단재생의료실시기관으로 지정받기 위해 보건복지부에 신청서를 제출합니다. 제출 서류에는 사업계획서, 설비 및 운영 계획서, SOP(표준작업지침서), IRB 승인서 등이 포함됩니다.
·보건복지부에서 제출된 서류를 검토하여 기본 요건 충족 여부를 확인합니다.
·첨단재생의료재단이 지정한 전문가 팀이 현장 실사를 수행합니다.
·시설 및 장비 점검 : 첨단재생의료 임상연구를 안전하게 수행할 수 있는 설비와 환경 여부 확인. ·인력 구성 확인 : 연구책임자, 연구담당자 등 필수 인력의 전문성 및 자격 요건 확인.
·실사 결과에서 부족한 부분이 발견되면 보건복지부와 첨단재생의료재단에서 보완 사항을 통보합니다. ·의료기관은 지적된 사항을 개선하여 재점검에 대비합니다.
·보완 사항이 충족되면, 보건복지부 장관이 첨단재생의료실시기관으로 최종 지정합니다.
보건복지부의 인증을 통해 첨단재생의료 임상연구를 법적으로 수행할 수 있어, 연구와 치료의 신뢰성을 확보하고 환자와 협력 기관의 신뢰를 얻을 수 있습니다.
정부의 연구비 지원 등 다양한 혜택을 받을 수 있으며, 보건복지부와 관련된 정책 및 프로그램에 우선 참여할 수 있는 기회를 제공합니다.
인증받은 기관으로서 환자들에게 안전하고 신뢰할 수 있는 치료 환경을 제공하며, 환자 맞춤형 치료제 개발 및 임상시험 수행에서 높은 신뢰도를 확보할 수 있습니다.
첨단재생의료실시기관 인증은 국제적 신뢰성을 보증하며, 글로벌 바이오 의약품 시장에서 경쟁력을 강화하고, 국제 기준에 부합하는 설비와 프로세스를 통해 국내외 기업과의 협력이 증대됩니다.
첨단재생의료실시기관 설계부터 인증까지, 강중 바이오사업부가 함께합니다." 최적의 설비와 전문 컨설팅으로 첨단재생의료실시기관 인증을 현실로 만듭니다.

첨단재생의료 임상연구에 최적화된 시설 설계를 통해 안전하고 효율적인 연구 환경을 조성합니다.

설계된 계획에 따라 고품질의 시공을 수행하여, 첨단재생의료실시기관의 물리적 기반을 구축합니다.

필수적인 연구 장비와 시스템을 설치하여, 연구 활동이 원활하게 이루어지도록 지원합니다.

표준작업지침서(SOP) 등 필수 문서를 작성하여, 운영 절차의 표준화와 규제 준수를 보장합니다.

공용 IRB와의 협약 체결을 지원하고, 필수 인력에 대한 교육을 통해 연구의 윤리성과 안전성을 확보합니다.

지정 신청에 필요한 모든 서류를 준비하고 제출하여, 첨단재생의료실시기관 지정을 원활하게 진행합니다.